• Pracownia
  • Projekty
  • Oferta
  • Kontakt
Juraszczyk Architektura Juraszczyk Architektura
powrót
Budynek mieszkalny wielorodzinny

Budynek mieszkalny wielorodzinny „MURAPOL Poznańska” – segment F

Powierzchnia zabudowy

1 520 m2

Powierzchnia całkowita

13 144 m2

Powierzchnia użytkowa

10 830 m2

Powierzchnia użytkowa mieszkań

7 246 m2

Lokalizacja

Kraków

Typ

projekt budowlano-wykonawczy

Inwestor

MURAPOL PROJEKT SP. Z O. O. 2 SKA

Autorzy

Marcin Jagiełło, Jan Juraszczyk
(projekt opracowany w ramach współpracy w Murapol Architects Drive)

Data

projekt 2015, realizacja 2017

Budynek stanowi połowę zespołu zabudowy przy ul. Poznańskiej i Wrocławskiej w Krakowie w ramach II etapu inwestycji Kraków Poznańska.

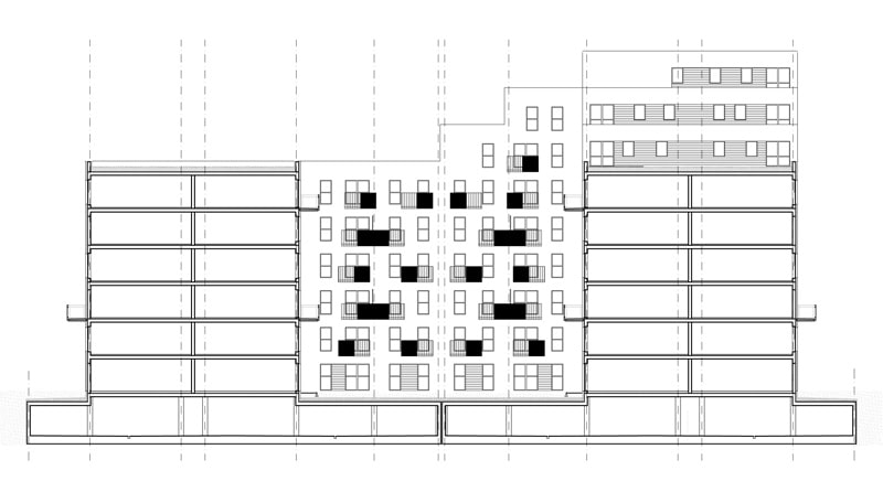
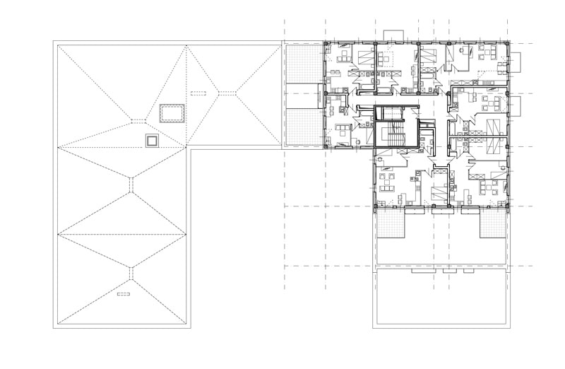
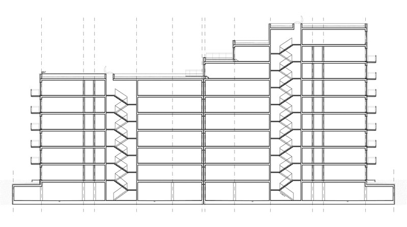
W ramach etapu zaprojektowano dwa budynki mieszkalne w układzie korytarzowym. Budynek F jest budynkiem średniowysokim o wysokości 6 do 9 kondygnacji, zaprojektowany w układzie podkowy z dziedzińcem otwierającym się na południe. Zabudowa narasta stopniowo we wschodniej części budynku wytwarzając 3 kondygnacje tarasowe, eksponowane na zachód i południe.

Dwa skrzydła budynku zaprojektowano w układzie symetrycznym jako niezależne konstrukcyjne, posadowione na garażach podziemnych.

Budynek mieści łącznie 175 mieszkań i niespełna 7000 PUM.

Wizualizacje

Budynek mieszkalny wielorodzinny

Rysunki

Budynek mieszkalny wielorodzinny
Budynek mieszkalny wielorodzinny
Budynek mieszkalny wielorodzinny
Budynek mieszkalny wielorodzinny
Budynek mieszkalny wielorodzinny
Budynek mieszkalny wielorodzinny
Budynek mieszkalny wielorodzinny
Budynek mieszkalny wielorodzinny
Budynek mieszkalny wielorodzinny
Budynek mieszkalny wielorodzinny
Budynek mieszkalny wielorodzinny

Zdjęcia

Budynek mieszkalny wielorodzinny
Budynek mieszkalny wielorodzinny
Budynek mieszkalny wielorodzinny
Juraszczyk Architektura

+48 723 516 201

biuro@juraszczyk.pl

ul. I. Łukasiewicza 7/4 i ul. T. Sixta 5/208
43-300 Bielsko-Biała