• Pracownia
  • Projekty
  • Oferta
  • Kontakt
Juraszczyk Architektura Juraszczyk Architektura
powrót
Budynek mieszkalny wielorodzinny

Budynek mieszkalny wielorodzinny „MURAPOL Poznańska” – segment G

Powierzchnia zabudowy

1 020 m2

Powierzchnia całkowita

11 503 m2

Powierzchnia użytkowa

8 055 m2

Powierzchnia użytkowa mieszkań

6 818 m2

Lokalizacja

Kraków

Typ

projekt budowlano-wykonawczy

Inwestor

MURAPOL PROJEKT SP. Z O. O. 2 SKA

Autorzy

Marcin Jagiełło, Jan Juraszczyk
(projekt opracowany w ramach współpracy w Murapol Architects Drive)

Data

projekt 2015, realizacja 2017

Budynek stanowi połowę zespołu zabudowy przy ul. Poznańskiej i Wrocławskiej w Krakowie w ramach II etapu inwestycji Kraków Poznańska.

W ramach etapu zaprojektowano dwa budynki mieszkalne w układzie korytarzowym. Budynek G jest budynkiem wysokim 9- i 10-kondygnacyjnym, zaprojektowany, w układzie litery C. Narastanie zabudowy jest konsekwencją i kontynuacją przyjętego w budynku F układu tarasowego.

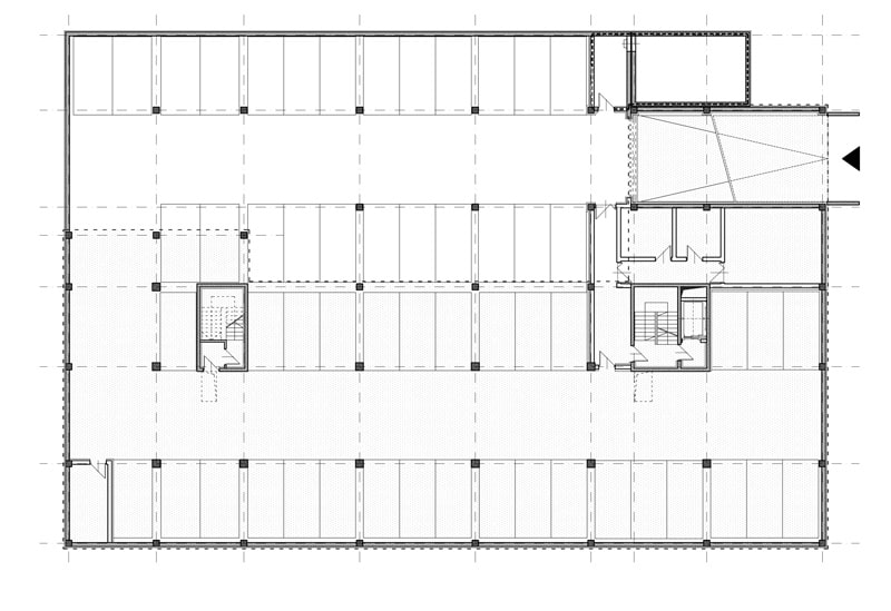
Obiekt posadowiono na jednym garażu podziemnym. Budynek mieści łącznie 184 mieszkań i nieco ponad 7000 PUM.

Rysunki

Budynek mieszkalny wielorodzinny
Budynek mieszkalny wielorodzinny
Budynek mieszkalny wielorodzinny
Budynek mieszkalny wielorodzinny
Budynek mieszkalny wielorodzinny
Budynek mieszkalny wielorodzinny
Budynek mieszkalny wielorodzinny
Budynek mieszkalny wielorodzinny
Budynek mieszkalny wielorodzinny

Zdjęcia

Budynek mieszkalny wielorodzinny
Budynek mieszkalny wielorodzinny
Juraszczyk Architektura

+48 723 516 201

biuro@juraszczyk.pl

ul. I. Łukasiewicza 7/4 i ul. T. Sixta 5/208
43-300 Bielsko-Biała