• Pracownia
  • Projekty
  • Oferta
  • Kontakt
Juraszczyk Architektura Juraszczyk Architektura
powrót
Budynek mieszkalny wielorodzinny

Budynek mieszkalny wielorodzinny „MURAPOL Siewierz Jeziorna”

Powierzchnia użytkowa mieszkań

2 300 m2

Lokalizacja

Siewierz, ul. Jeziorna

Typ

projekt budowlano-wykonawczy

Inwestor

MURAPOL S.A.

Autorzy

Anna Woźniczka, Jan Juraszczyk
(projekt opracowany w ramach współpracy w Murapol Architects Drive)

Data

projekt 2015, realizacja 2017

Budynek mieszkalny wielorodzinny przy ulicy Jeziornej w Siewierzu stanowi część kompleksu Miasteczka Zrównoważonego – nowej dzielnicy miasta kształtowanej od podstaw z zastosowaniem idei nowego urbanizmu.

Koncepcja założenia opracowywana była w porozumieniu z architektami i urbanistami Miasteczka „Siewierz Jeziorna”z pracowni Mycielski Architecture & Urbanism oraz DP Architektur & Stadtebau.

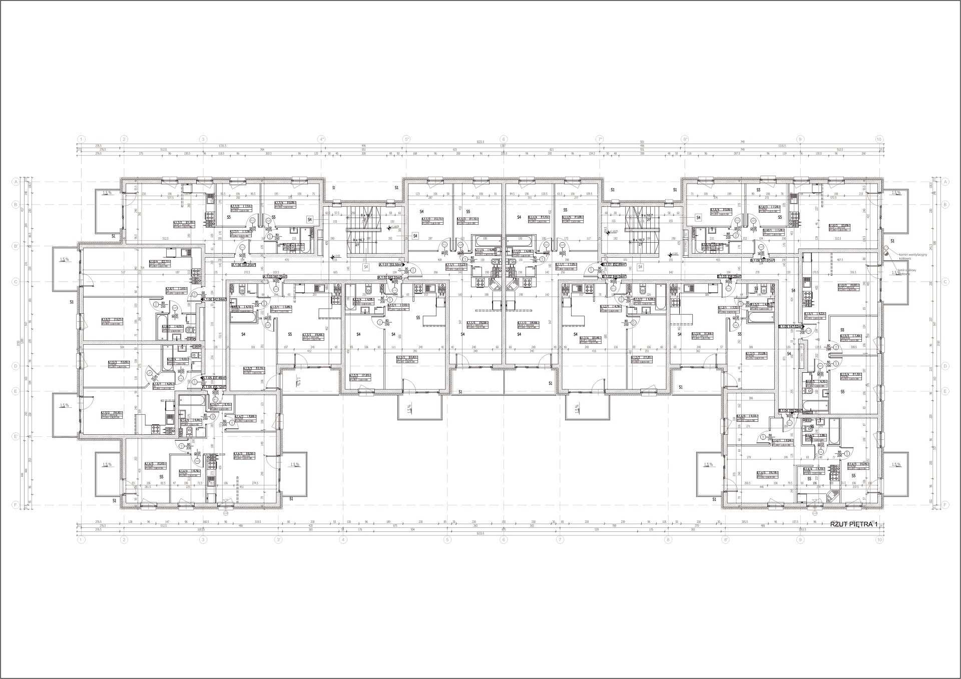
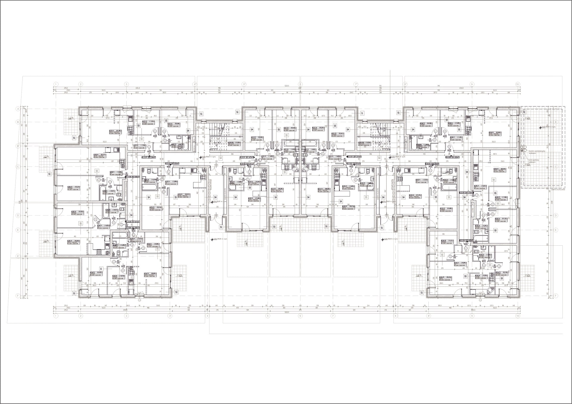
W ramach inwestycji zaprojektowano 52 mieszkania i niespełna 2300PUM. Budynek jest niski, czterokondygnacyjny, o tradycyjnym wyrazie architektonicznym zgodnie z ideą całego osiedla zrównoważonego. Rozwiązany na planie litery U z dziedzińcem zwróconym na południe, zawierającym przestrzeń półprywatną dla mieszkańców obiektu.

Wizualizacje

Budynek mieszkalny wielorodzinny
Budynek mieszkalny wielorodzinny

Rysunki

Budynek mieszkalny wielorodzinny
Budynek mieszkalny wielorodzinny
Budynek mieszkalny wielorodzinny
Budynek mieszkalny wielorodzinny

Zdjęcia

Budynek mieszkalny wielorodzinny
Budynek mieszkalny wielorodzinny
Juraszczyk Architektura

+48 723 516 201

biuro@juraszczyk.pl

ul. I. Łukasiewicza 7/4 i ul. T. Sixta 5/208
43-300 Bielsko-Biała