• Pracownia
  • Projekty
  • Oferta
  • Kontakt
Juraszczyk Architektura Juraszczyk Architektura
powrót
Budynek mieszkalny wielorodzinny

Budynek mieszkalny wielorodzinny „MURAPOL Śląskie Ogrody”

Powierzchnia użytkowa mieszkań

3 400 m2

Lokalizacja

Tychy, ul. Żorska

Typ

projekt budowlano-wykonawczy

Inwestor

MURAPOL PROJEKT 3

Autorzy

Elżbieta Czaderska, Aleksandra Juraszczyk, Jan Juraszczyk
(projekt opracowany w ramach współpracy w Murapol Architects Drive)

Data

projekt 2016, realizacja 2018

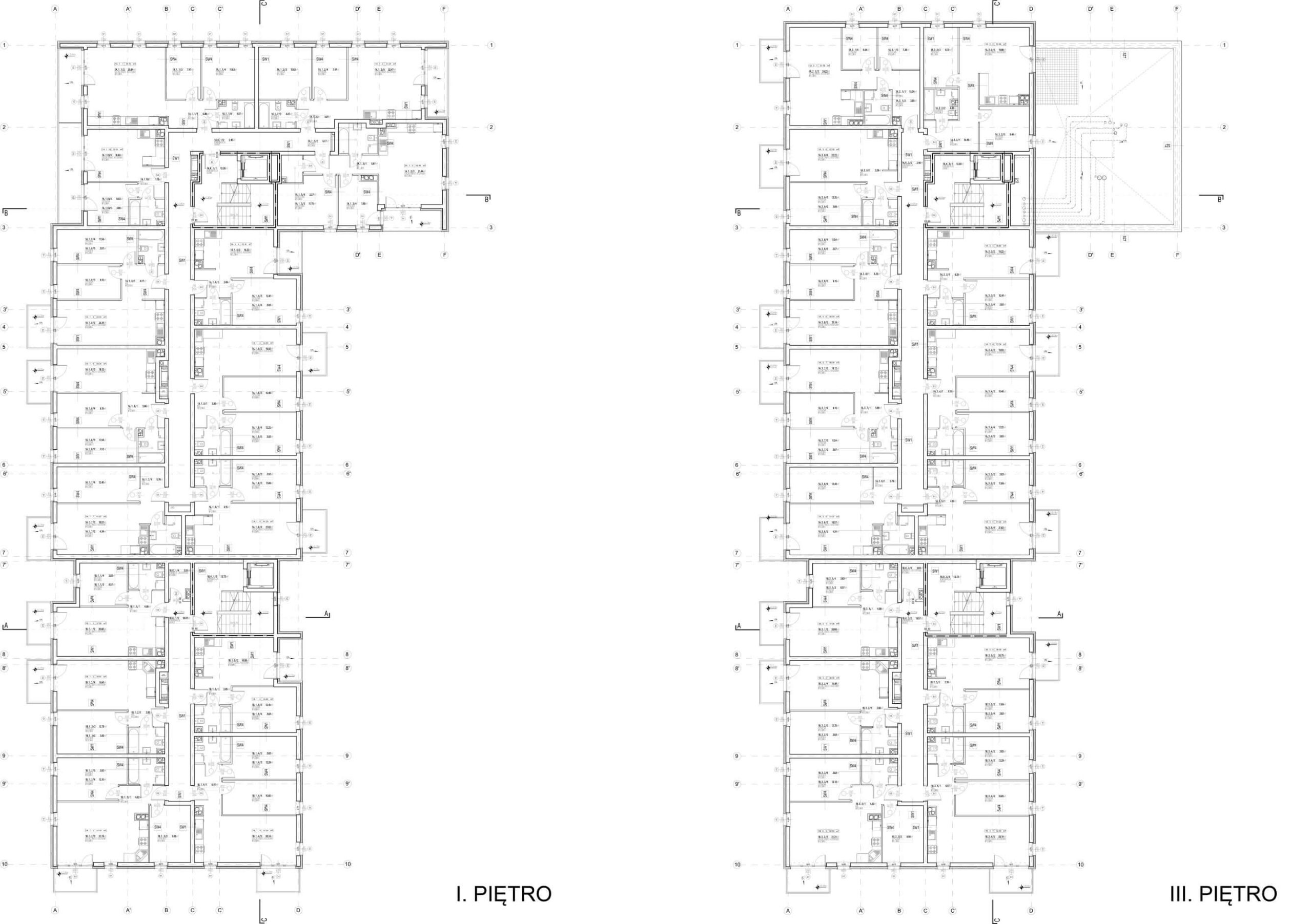
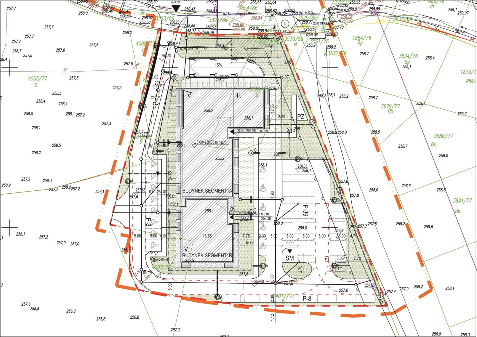
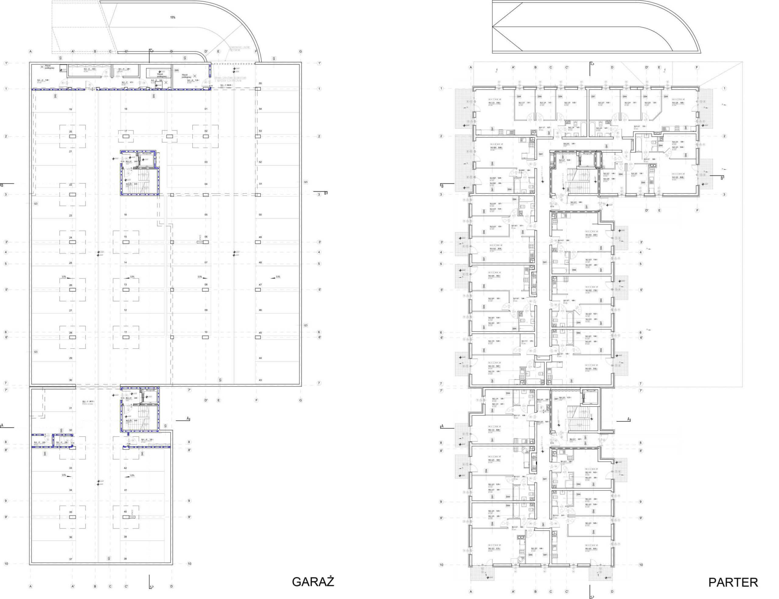
Budynek mieszkalny wielorodzinny przy ulicy Żorskiej w Tychach stanowi pierwszy etap inwestycji „Śląskie Ogrody” w Tychach.

W ramach etapu zaprojektowano 73 mieszkania i ok. 3400PUM.

Budynek zaprojektowano na planie litery L jako obiekt średniowysoki, pięciokondygnacyjny, z garażem na jednej kondygnacji podziemnej.

Wizualizacje

Budynek mieszkalny wielorodzinny
Budynek mieszkalny wielorodzinny
Budynek mieszkalny wielorodzinny
Budynek mieszkalny wielorodzinny
Budynek mieszkalny wielorodzinny

Rysunki

Budynek mieszkalny wielorodzinny
Budynek mieszkalny wielorodzinny
Budynek mieszkalny wielorodzinny
Budynek mieszkalny wielorodzinny
Juraszczyk Architektura

+48 723 516 201

biuro@juraszczyk.pl

ul. I. Łukasiewicza 7/4 i ul. T. Sixta 5/208
43-300 Bielsko-Biała