• Pracownia
  • Projekty
  • Oferta
  • Kontakt
Juraszczyk Architektura Juraszczyk Architektura
powrót
Podgórskie domy jednorodzinne

Zespół domów jednorodzinnych pod Kozią Górą

Liczba mieszkań

6

Powierzchnia zabudowy

489 m2

Powierzchnia całkowita

942 m2

Powierzchnia użytkowa

690 m2

Powierzchnia użytkowa mieszkań

115 m2

Kondygnacje naziemne

2

Miejsca parkingowe

12

Lokalizacja

Bielsko-Biała

Typ

projekt budowlano-wykonawczy

Inwestor

prywatny

Autorzy

Jan Juraszczyk

Data

projekt 2021, realizacja w toku

Projekt zespołu domów jednorodzinnych zlokalizowany jest w południowej części Bielska-Białej – w bliskiej odległości od szlaków turystycznych i ścieżek rowerowych na Koziej Górze. Ze względu na taką lokalizację projektu, ułożenie budynków na działce zostało uwarunkowane przede wszystkim walorami osi widokowych na Kozią Górę oraz Magurkę Wilkowicką.

Budynki zostały wykształcone jako bliźniacze segmenty w odbiciu lustrzanym, jednak z dodatkowym przesunięciem segmentów względem siebie o 2m, gwarantującym intymność zarówno w strefie wejściowej, jak i w obrębie wyjścia na taras ze strefy dziennej.

Pojedyncze segmenty mają współczesną bryłę nawiązującą do tradycyjnej formy domu. Wykończenie ścian podłużnych z blachy trapezowej podkreśla ich nowoczesny charakter, natomiast płyty włóknocementowe w zróżnicowanej kolorystyce zastosowane na ścianach frontowych nadają każdemu segmentowi indywidualnego charakteru.

Wizualizacje

Podgórskie domy jednorodzinne

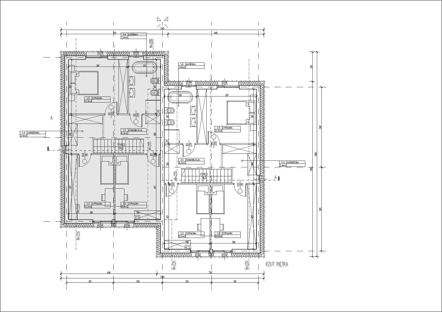
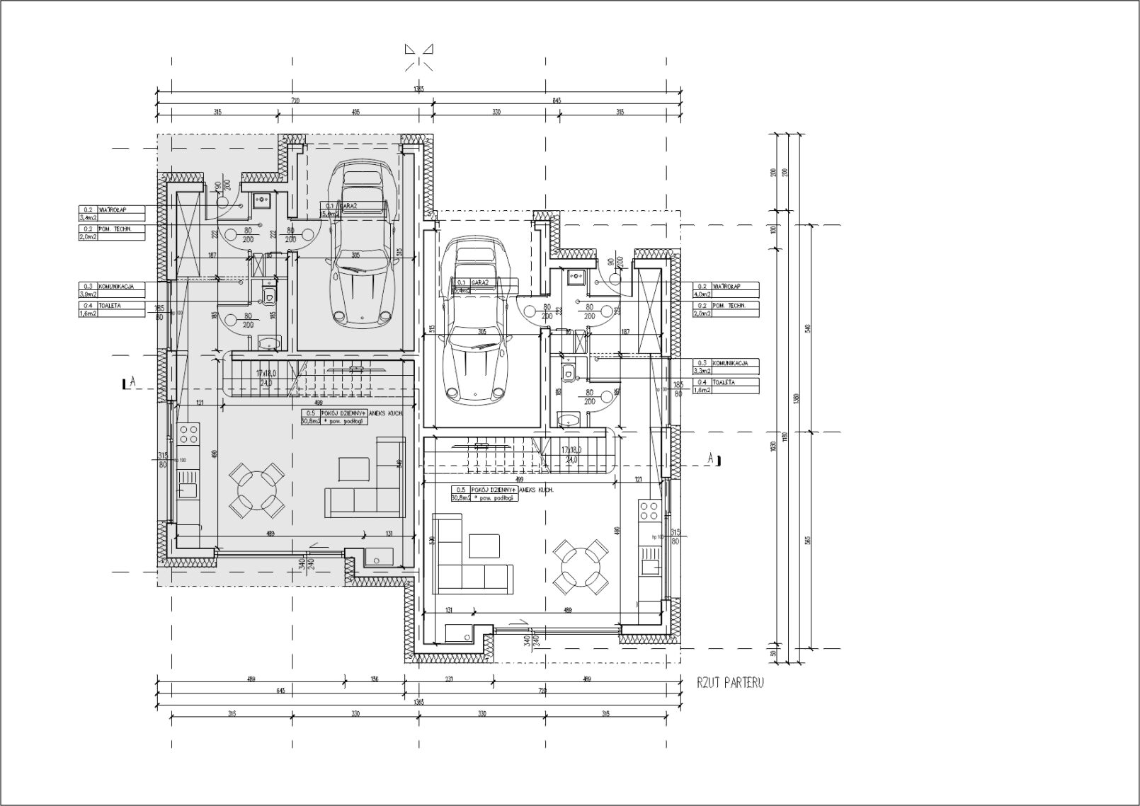
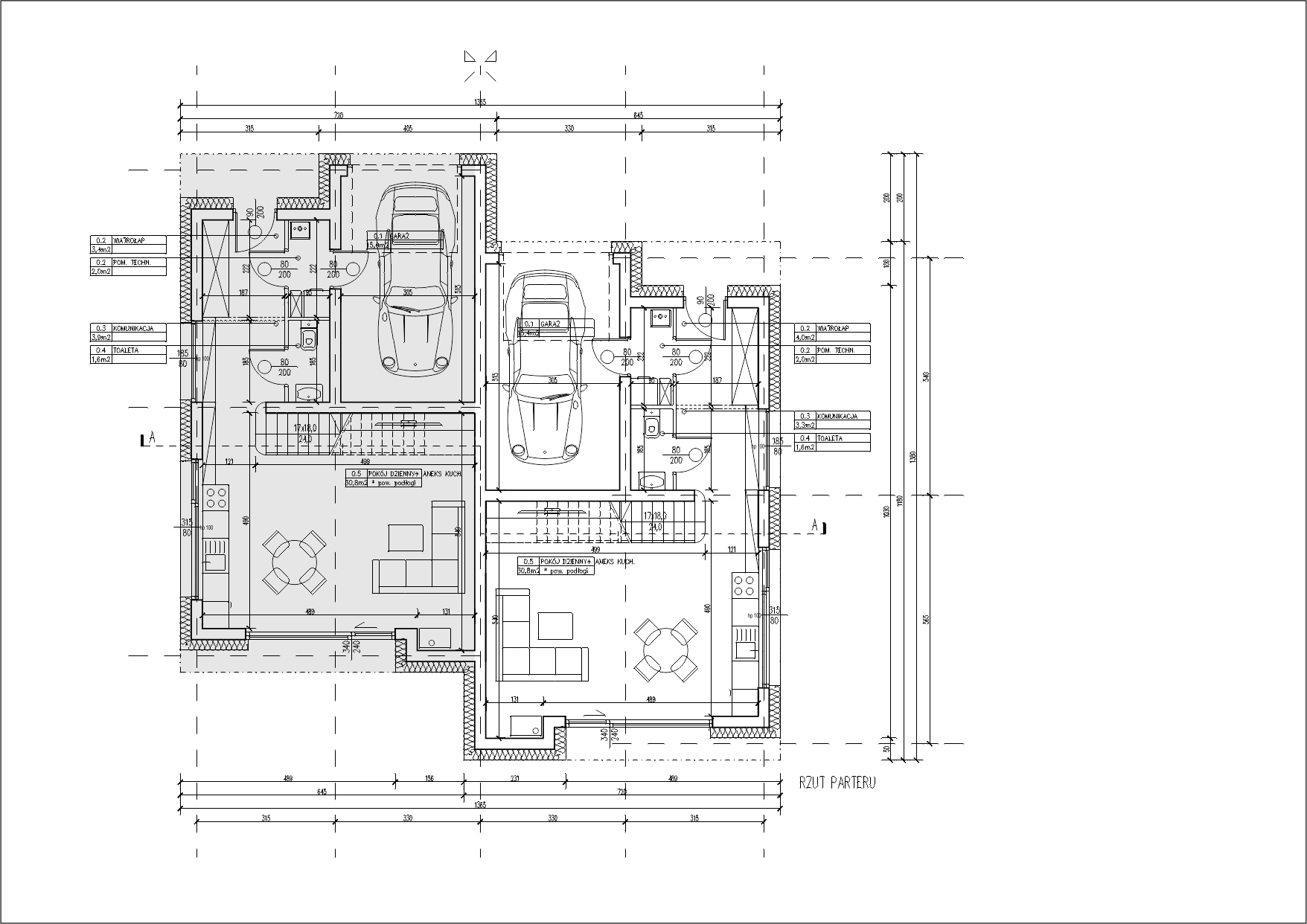
Rysunki

Juraszczyk Architektura

+48 723 516 201

biuro@juraszczyk.pl

ul. I. Łukasiewicza 7/4 i ul. T. Sixta 5/208
43-300 Bielsko-Biała