• Pracownia
  • Projekty
  • Oferta
  • Kontakt
Juraszczyk Architektura Juraszczyk Architektura
powrót
Kompaktowy dom na wzgórzu

Kompaktowy dom na wzgórzu

Powierzchnia zabudowy

128 m2

Powierzchnia całkowita

219 m2

Powierzchnia użytkowa

159 m2

Lokalizacja

Bielsko-Biała

Typ

projekt budowlano-wykonawczy

Inwestor

prywatny

Autorzy

Jan Juraszczyk, Aleksandra Juraszczyk

Data

projekt 2016, realizacja w toku

Projekt kompaktowego domu jest zlokalizowany na działce położonej w gęsto zurbanizowanej części Bielska – ostatniej działce przed granicą lasu na zboczu góry.

Ze względu na ekspozycję widokową, z panoramą miasta i Magurki Wilkowickiej, budynek został zaprojektowany w kierunku prostopadłym do spadku terenu.

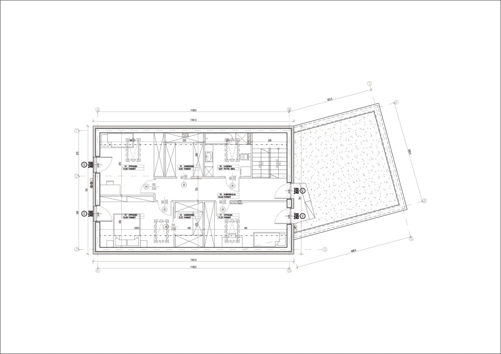
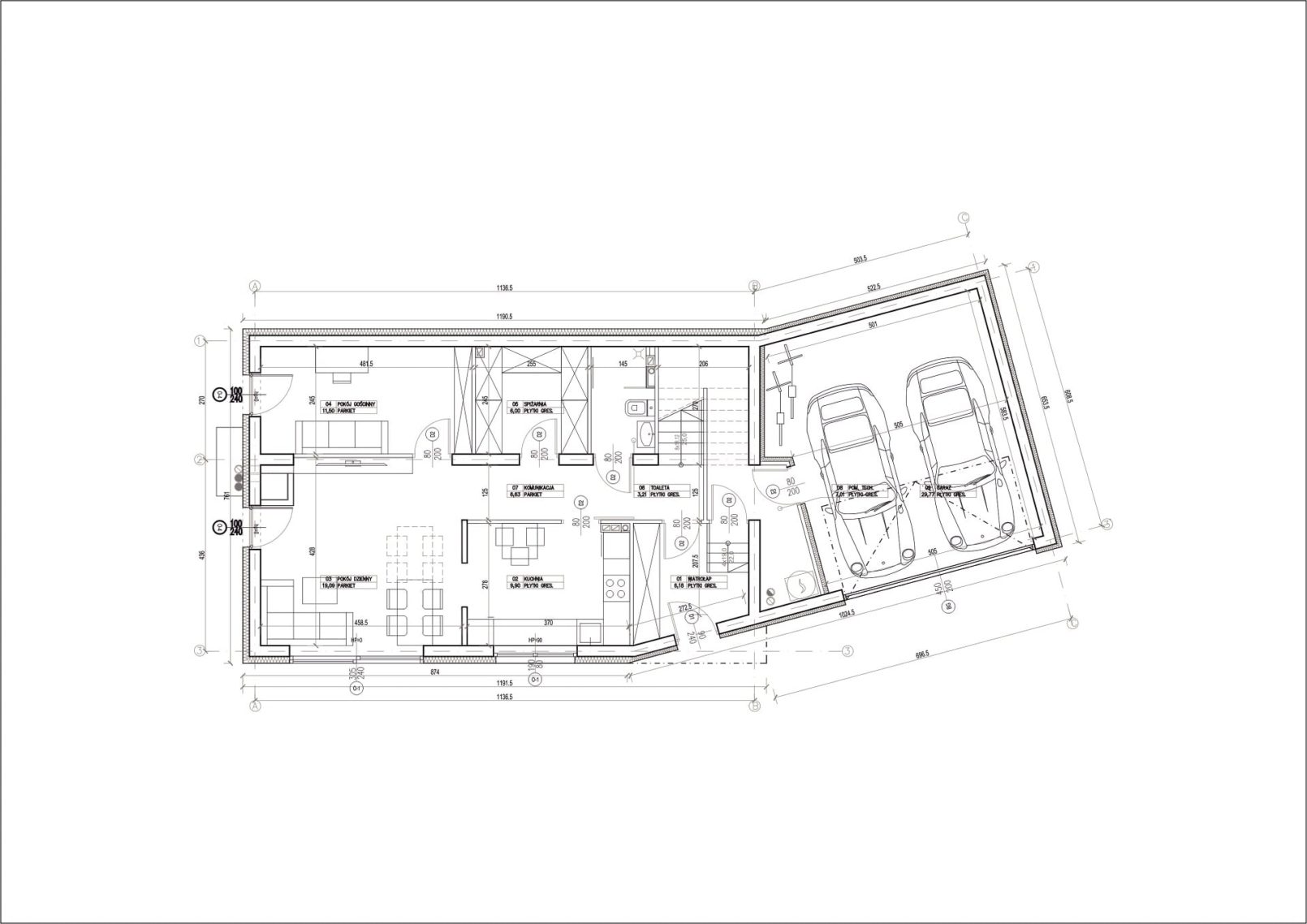
Budynek ma bardzo prostą, tradycyjną formę domu z dachem dwuspadowym, rozbudowanego o garaż dwustanowiskowy, ustawiony „na ukos” do zasadniczej bryły budynku w taki sposób, aby ułatwić wjazd do garażu z narożnika działki.

Wizualizacje

Kompaktowy dom na wzgórzu
Kompaktowy dom na wzgórzu
Kompaktowy dom na wzgórzu

Rysunki

Kompaktowy dom na wzgórzu
Kompaktowy dom na wzgórzu
Kompaktowy dom na wzgórzu
Kompaktowy dom na wzgórzu

Zdjęcia

Kompaktowy dom na wzgórzu
Kompaktowy dom na wzgórzu
Kompaktowy dom na wzgórzu
Juraszczyk Architektura

+48 723 516 201

biuro@juraszczyk.pl

ul. I. Łukasiewicza 7/4 i ul. T. Sixta 5/208
43-300 Bielsko-Biała