• Pracownia
  • Projekty
  • Oferta
  • Kontakt
Juraszczyk Architektura Juraszczyk Architektura
powrót
Parterowy dom

Parterowy dom „L”

Powierzchnia zabudowy

212 m2

Powierzchnia całkowita

201 m2

Powierzchnia użytkowa

164 m2

Lokalizacja

Masłów Pierwszy

Typ

projekt budowlano-wykonawczy

Inwestor

prywatny

Autorzy

Jan Juraszczyk, Aleksandra Juraszczyk

Data

projekt 2016, realizacja w toku

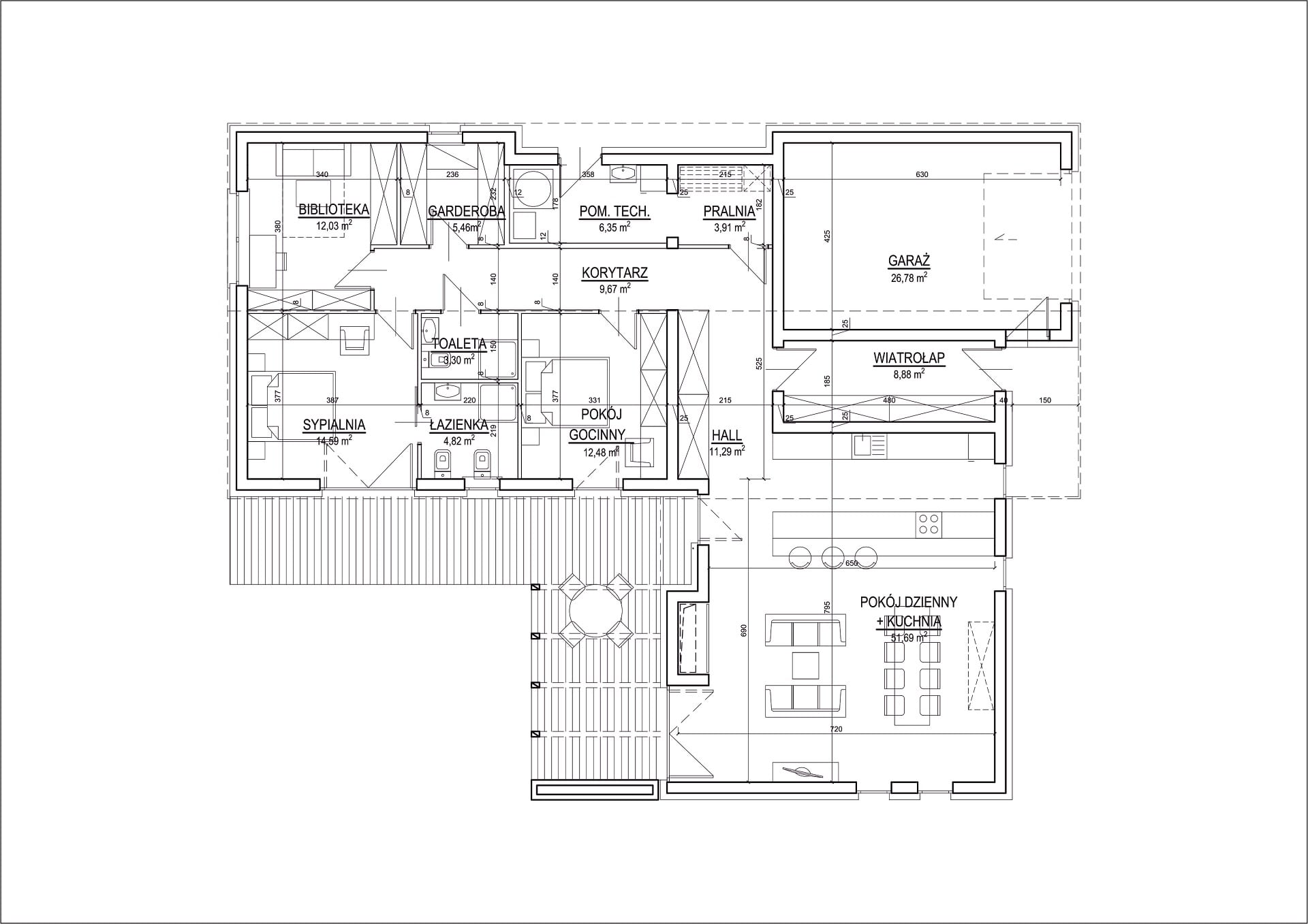
Dom zlokalizowany jest na widokowej działce w niewielkiej miejscowości pod Kielcami. Budynek posiada czytelną formę, która powstała poprzez połączenie dwóch brył – tradycyjnego domu z dwuspadowym dachem z płaskim, ceglanym „pudełkiem”.

Taka forma budynku jest odwzorowaniem czytelnego układu funkcjonalnego wewnątrz domu. Południowe, dolne skrzydło, w formie „pudełka” z płaskim dachem, wykończone szarą cegłą klinkierową, zawiera wyraźnie wydzieloną część dzienną domu. Poprzeczne skrzydło, przykryte dachem dwuspadowym, zawiera pozostałe pomieszczenia mieszkalne i techniczne.

Budynek jest parterowy, na planie litery L – pozwoliło to na wykształcenie prywatnego, ukrytego tarasu użytkowego, dostępnego z wszystkich pomieszczeń mieszkalnych, w którym sam kształt budynku ogranicza nadmierne nasłonecznienie.

Wizualizacje

Parterowy dom
Parterowy dom

Rysunki

Parterowy dom
Parterowy dom
Parterowy dom

Zdjęcia

Parterowy dom
Parterowy dom
Parterowy dom
Parterowy dom
Juraszczyk Architektura

+48 723 516 201

biuro@juraszczyk.pl

ul. I. Łukasiewicza 7/4 i ul. T. Sixta 5/208
43-300 Bielsko-Biała