• Pracownia
  • Projekty
  • Oferta
  • Kontakt
Juraszczyk Architektura Juraszczyk Architektura
powrót
Parterowy dom na szkodach górniczych

Parterowy dom podmiejski na szkodach górniczych

Powierzchnia zabudowy

217 m2

Powierzchnia całkowita

203 m2

Powierzchnia użytkowa

155 m2

Lokalizacja

Mysłowice

Typ

projekt budowlano-wykonawczy

Inwestor

prywatny

Autorzy

Jan Juraszczyk

Data

projekt 2020, realizacja w toku

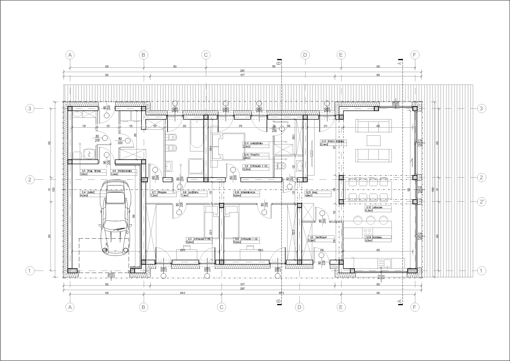
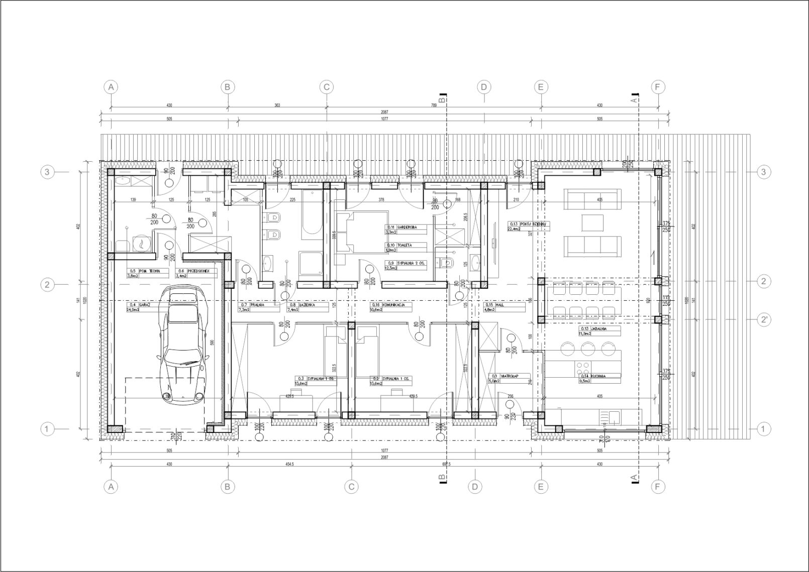
Budynek mieszkalny jednorodzinny zlokalizowany w Mysłowicach, o prostej i zwartej bryle, opartej na symetrii osiowej.

Rzut budynku został wykształcony na podstawie prostokąta o proporcjach boków ok. 2:1. W celu zaakcentowania wejścia oraz zapewnienia intymności i zacienienia w sypialniach, zostały wprowadzone podłużne podcienia, które dodatkowo podkreślają symetrię bryły. Podcienia zostaną wykończone w naturalnej okładzinie drewnianej – dodadzą lekkości w ciemnej bryle.

Strefa dzienna została zaprojektowana o pełnej wysokości do dachu budynku; dodatkowo w bryle budynku została wyróżniona poprzez wykończenie z jasnoszarzej płyty włóknocementowej, tworzące regularny rytm z przeszkleniami w tej części domu.

Wizualizacje

Rysunki

Juraszczyk Architektura

+48 723 516 201

biuro@juraszczyk.pl

ul. I. Łukasiewicza 7/4 i ul. T. Sixta 5/208
43-300 Bielsko-Biała