• Pracownia
  • Projekty
  • Oferta
  • Kontakt
Juraszczyk Architektura Juraszczyk Architektura
powrót
Parterowy dom pod lasem

Parterowy dom pod lasem

Powierzchnia zabudowy

178 m2

Powierzchnia całkowita

160 m2

Powierzchnia użytkowa

123 m2

Lokalizacja

Czechowice-Dziedzice

Typ

projekt budowlano-wykonawczy

Inwestor

prywatny

Autorzy

Jan Juraszczyk

Data

projekt 2018, realizacja w toku

Zaprojektowany przez Pana dom jest spełnieniem wszystkich naszych oczekiwań, życzeń i „zachcianek” (…). Dziękujemy za dobre rady, pomysłowe rozwiązania a szczególnie za zachowaną przez Pana równowagę między profesjonalizmem i kompetencją a wyrozumiałością i „ludzkim” podejściem.

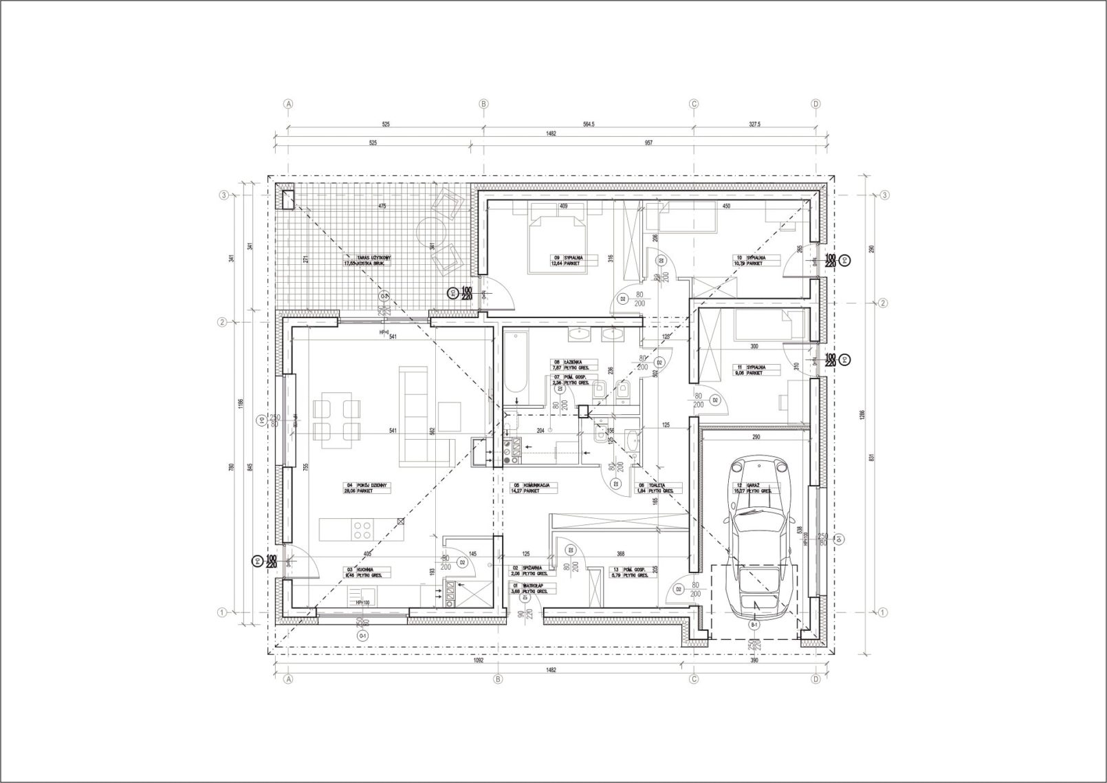
Niewielki, parterowy dom, zlokalizowany jest w zespole zabudowy podmiejskiej – z dwóch stron za sąsiadów ma inne budynki jednorodzinne, z dwóch pozostałych jego sąsiadem jest stary las liściasty. W związku z tym, dom zaprojektowaliśmy na planie litery „L”, z prywatnym zadaszonym tarasem otwierającym się na ten las. Dodatkowo wprowadziliśmy szerokie panoramiczne okna, które we wnętrzu sprawiają wrażenie obrazów zieleni na ścianie.

Parterowy dom został przekryty skośnym dachem czterospadowym, co współgra z jego kompaktowym rozmiarem i prostotą jego konstrukcji.

Wizualizacje

Parterowy dom pod lasem
Parterowy dom pod lasem

Rysunki

Parterowy dom pod lasem
Parterowy dom pod lasem
Parterowy dom pod lasem

Zdjęcia

Parterowy dom pod lasem
Parterowy dom pod lasem
Parterowy dom pod lasem
Juraszczyk Architektura

+48 723 516 201

biuro@juraszczyk.pl

ul. I. Łukasiewicza 7/4 i ul. T. Sixta 5/208
43-300 Bielsko-Biała