• Pracownia
  • Projekty
  • Oferta
  • Kontakt
Juraszczyk Architektura Juraszczyk Architektura
powrót
Podgórski dom rustykalny

Podgórski dom rustykalny

Powierzchnia zabudowy

104 m2

Powierzchnia całkowita

210 m2

Powierzchnia użytkowa

146 m2

Lokalizacja

Żywiec

Typ

projekt budowlano-wykonawczy

Inwestor

prywatny

Autorzy

Jan Juraszczyk

Data

projekt 2018, realizacja w toku

Niewielki dom z poddaszem użytkowym zlokalizowany jest na widokowej działce w Beskidzie Żywieckim.

Założeniem Inwestora był projekt o estetyce rustykalnej, tradycyjnej. Sięgając do beskidzkich tradycji, skupiliśmy się na zachowaniu idealnej symetrii w bryle budynku, dodatkowo podkreślając ją poprzez wprowadzenie charakterystycznego wykusza.

W budynku wyeksponowano elementy drewnianej konstrukcji (w tym belki stropu nad parterem we wnętrzu), tradycyjną deskę drewnianą wykorzystano też w elementach wykończenia budynku – w formie okładziny elewacyjnej, okiennic i ozdobnych donic.

Wizualizacje

Podgórski dom rustykalny
Podgórski dom rustykalny
Podgórski dom rustykalny
Podgórski dom rustykalny

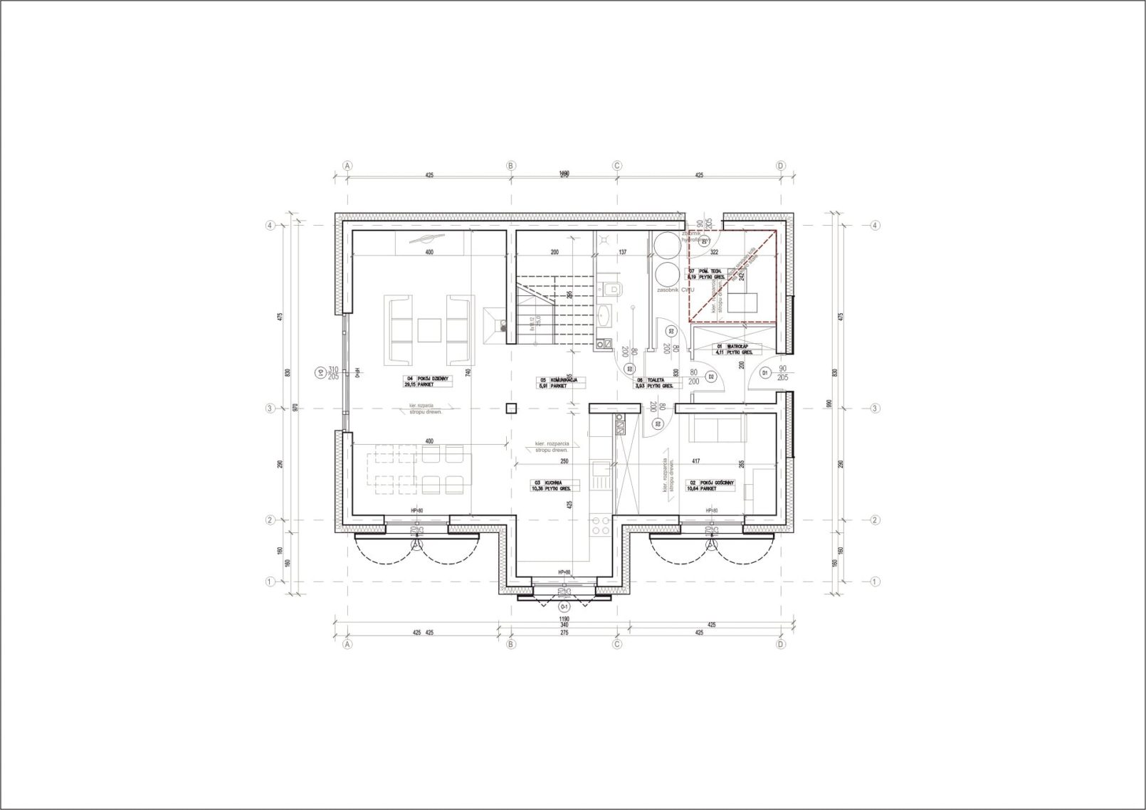
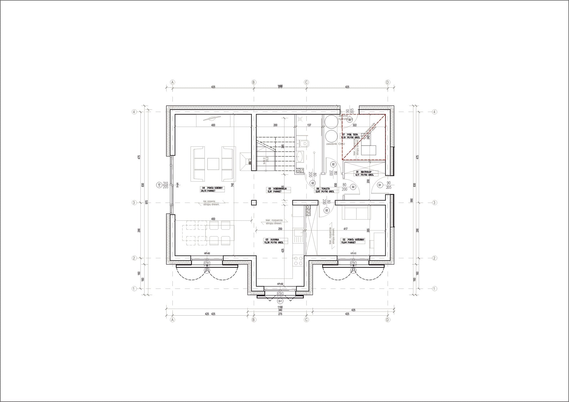
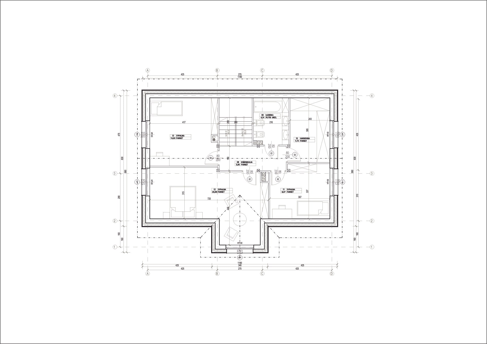
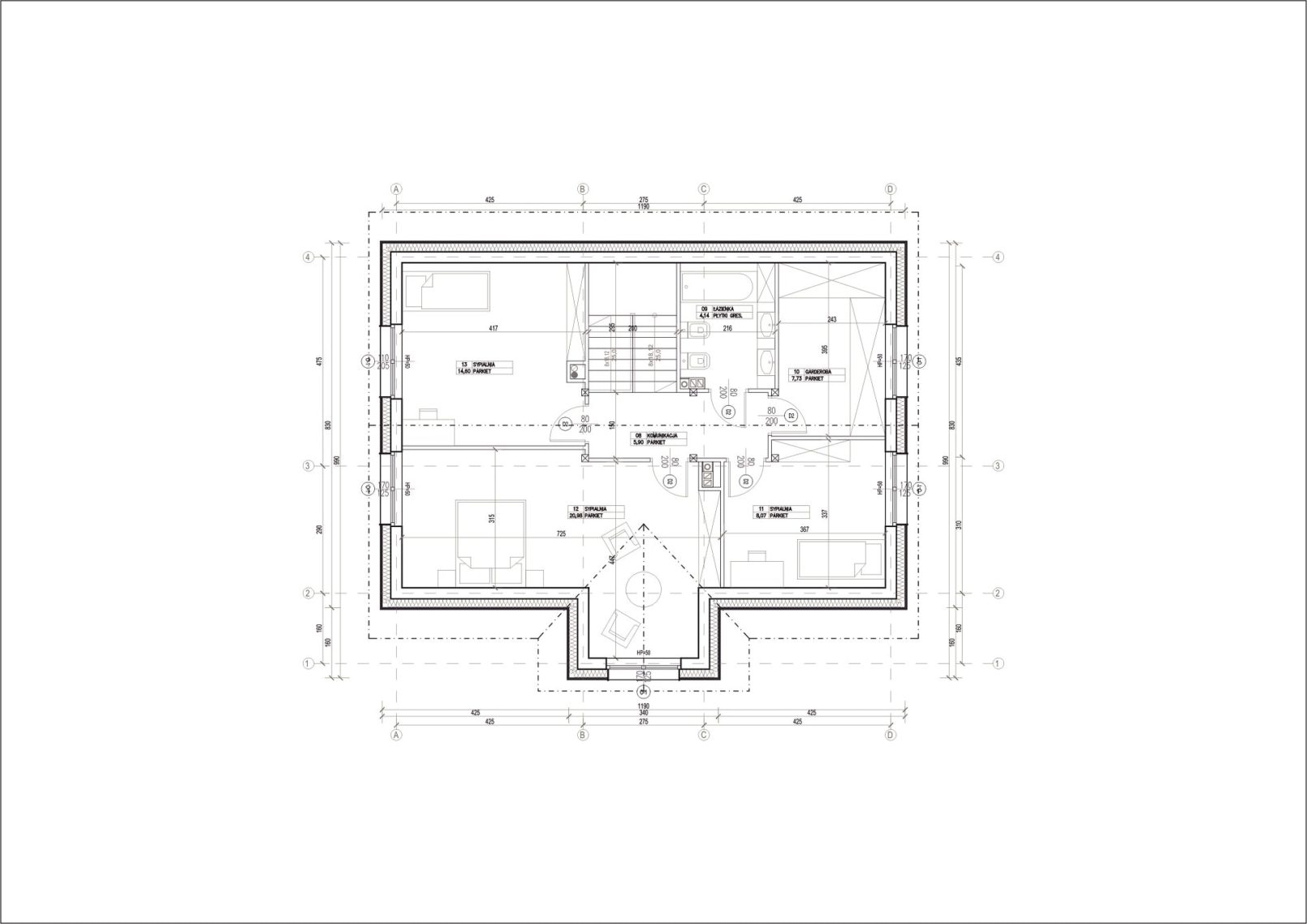
Rysunki

Podgórski dom rustykalny
Podgórski dom rustykalny
Podgórski dom rustykalny
Podgórski dom rustykalny
Podgórski dom rustykalny

Zdjęcia

Podgórski dom rustykalny
Podgórski dom rustykalny
Podgórski dom rustykalny
Juraszczyk Architektura

+48 723 516 201

biuro@juraszczyk.pl

ul. I. Łukasiewicza 7/4 i ul. T. Sixta 5/208
43-300 Bielsko-Biała