• Pracownia
  • Projekty
  • Oferta
  • Kontakt
Juraszczyk Architektura Juraszczyk Architektura
powrót
Prosty dom podmiejski

Prosty dom podmiejski

Powierzchnia zabudowy

142 m2

Powierzchnia całkowita

257 m2

Powierzchnia użytkowa

162 m2

Lokalizacja

Ruda Śląska

Typ

projekt budowlano-wykonawczy

Inwestor

prywatny

Autorzy

Jan Juraszczyk, Tadeusz Kostoń

Data

projekt 2017

Projekt domu zlokalizowany jest na podmiejskim osiedlu na Górnym Śląsku.

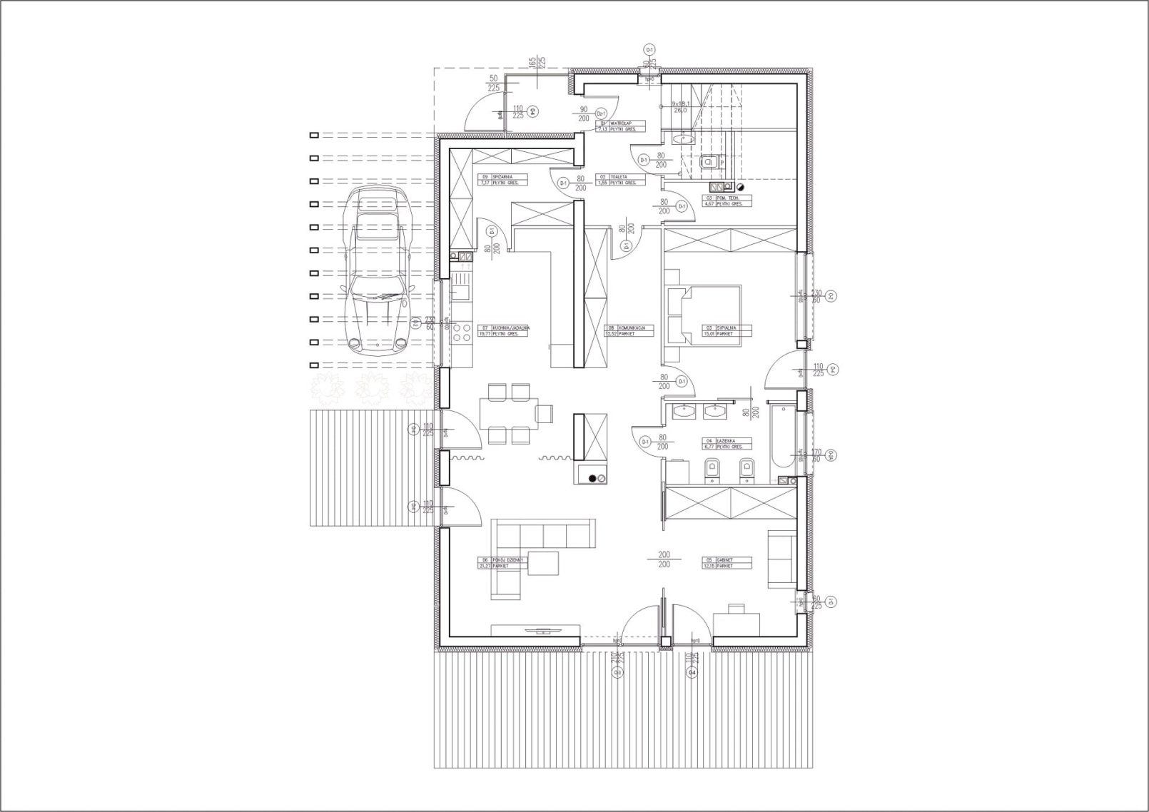
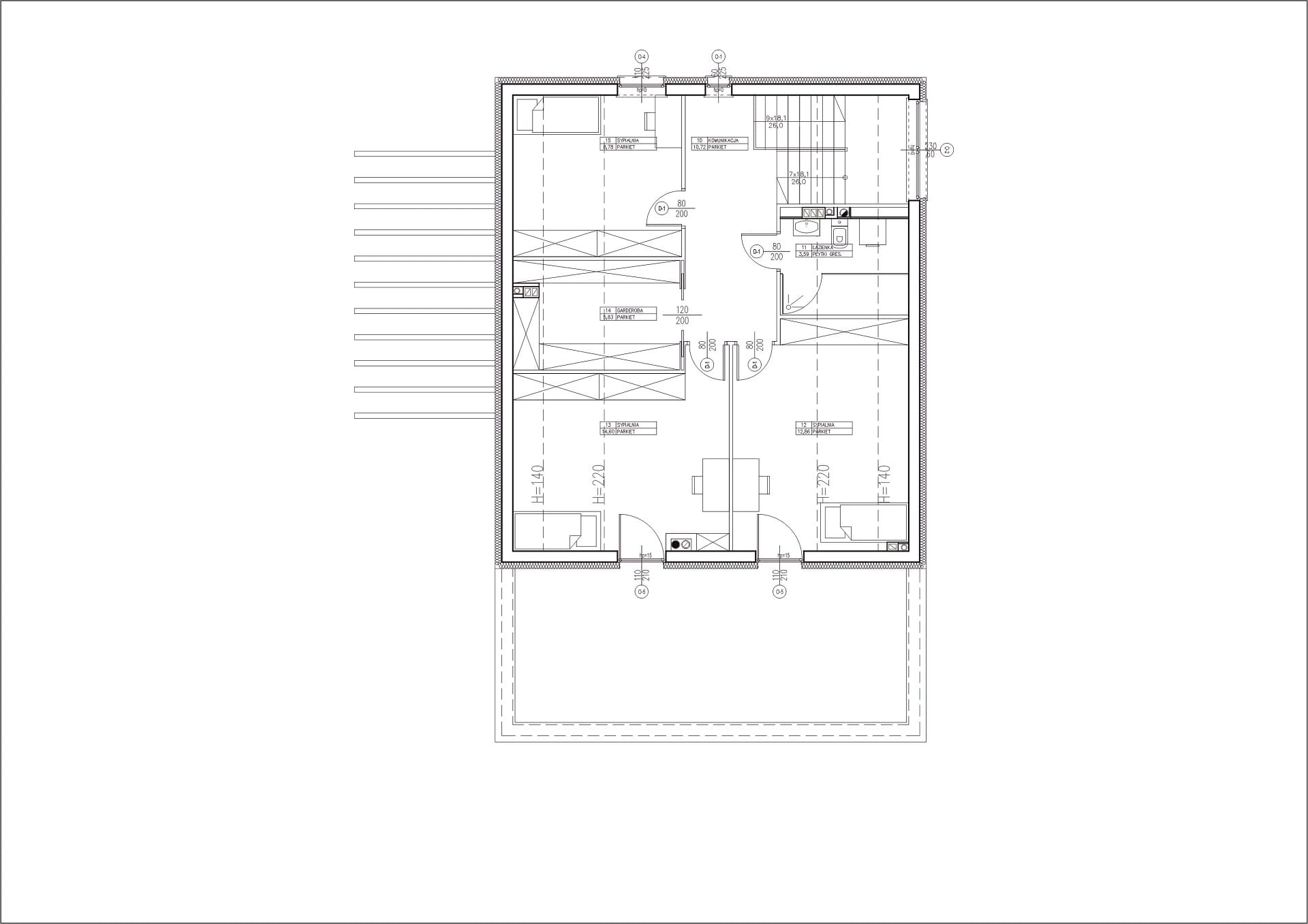
Dom posiada prostą, czytelną bryłę – rzut rozwiązano na planie prostokąta w układzie poprzecznym do działki – w ten sposób ogród został odgrodzony od wjazdu na działkę. Budynek jest dwukondygnacyjny z poddaszem użytkowym. Garaż został zastąpiony przez drewnianą wiatę zintegrowaną z bryłą budynku.

Założeniem Inwestora było wytworzenie otwartej, przenikającej się przestrzeni o przytulnym charakterze – stąd na parterze wyraźnie wydzielono kuchnię, jadalnię i właściwy pokój dzienny, który może być wizualnie i funkcjonalnie powiększony o powierzchnię pokoju-pracowni.

Wizualizacje

Prosty dom podmiejski
Prosty dom podmiejski
Prosty dom podmiejski

Rysunki

Prosty dom podmiejski
Prosty dom podmiejski
Prosty dom podmiejski
Prosty dom podmiejski
Juraszczyk Architektura

+48 723 516 201

biuro@juraszczyk.pl

ul. I. Łukasiewicza 7/4 i ul. T. Sixta 5/208
43-300 Bielsko-Biała