• Pracownia
  • Projekty
  • Oferta
  • Kontakt
Juraszczyk Architektura Juraszczyk Architektura
powrót
Zespół budynków mieszkalnych wielorodzinnych

Zespół budynków mieszkalnych wielorodzinnych „MURAPOL Apartamenty Staromiejskie”

Powierzchnia zabudowy

2 432 m2

Powierzchnia całkowita

14 137 m2

Powierzchnia użytkowa

7 788 m2

Powierzchnia użytkowa mieszkań

6 874 m2

Lokalizacja

Toruń, ul. Grudziądzka i PCK

Typ

projekt budowlano-wykonawczy

Inwestor

MURAPOL S.A.

Autorzy

Marcin Jagiełło, Jan Juraszczyk, Piotr Sobociński
(projekt opracowany w ramach współpracy w Murapol Architects Drive)

Data

projekt 2015, realizacja 2018

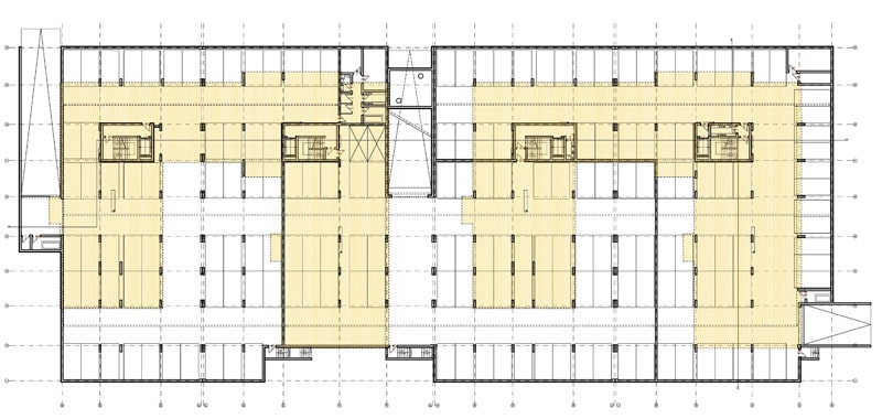
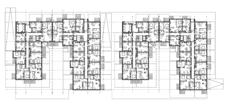
Budynki stanowią zespół zabudowy mieszkaniowej wielorodzinnej przy ulicy Grudziądzkiej i PCK w Toruniu.

Projekt obejmuje dwa takie same budynki mieszkalne wielorodzinne o 4 klatkach schodowych łącznie. Budynki są niskie, czterokondygnacyjne. Kwartał zabudowy zaprojektowano w układzie dwóch podków z wewnętrznymi dziedzińcami- przestrzeniami półprywatnymi.

Dwa budynki posadowiono na łącznie trzech niezależnych garażach podziemnych z trzema rampami zjazdowymi.

W ramach całego założenia zaprojektowano 182 mieszkania i niespełna 7000 PUM oraz 4000 m2 powierzchni garaży podziemnych.

Wizualizacje

Zespół budynków mieszkalnych wielorodzinnych
Zespół budynków mieszkalnych wielorodzinnych

Rysunki

Zespół budynków mieszkalnych wielorodzinnych
Zespół budynków mieszkalnych wielorodzinnych
Zespół budynków mieszkalnych wielorodzinnych
Zespół budynków mieszkalnych wielorodzinnych
Juraszczyk Architektura

+48 723 516 201

biuro@juraszczyk.pl

ul. I. Łukasiewicza 7/4 i ul. T. Sixta 5/208
43-300 Bielsko-Biała